|
базовая 150/150 |
980 000 |
| стандарт 150/150 | 1 600 000 |
|
Фундамент ленточный |
175 000 |
| Сваи винтовые | 120 000 |
|
базовая 150/150 |
980 000 |
| стандарт 150/150 | 1 600 000 |
|
Фундамент ленточный |
175 000 |
| Сваи винтовые | 120 000 |
-
Описание
ТЕХНИЧЕСКОЕ ОПИСАНИЕ:
Базовая коробка из бруса 150Х150
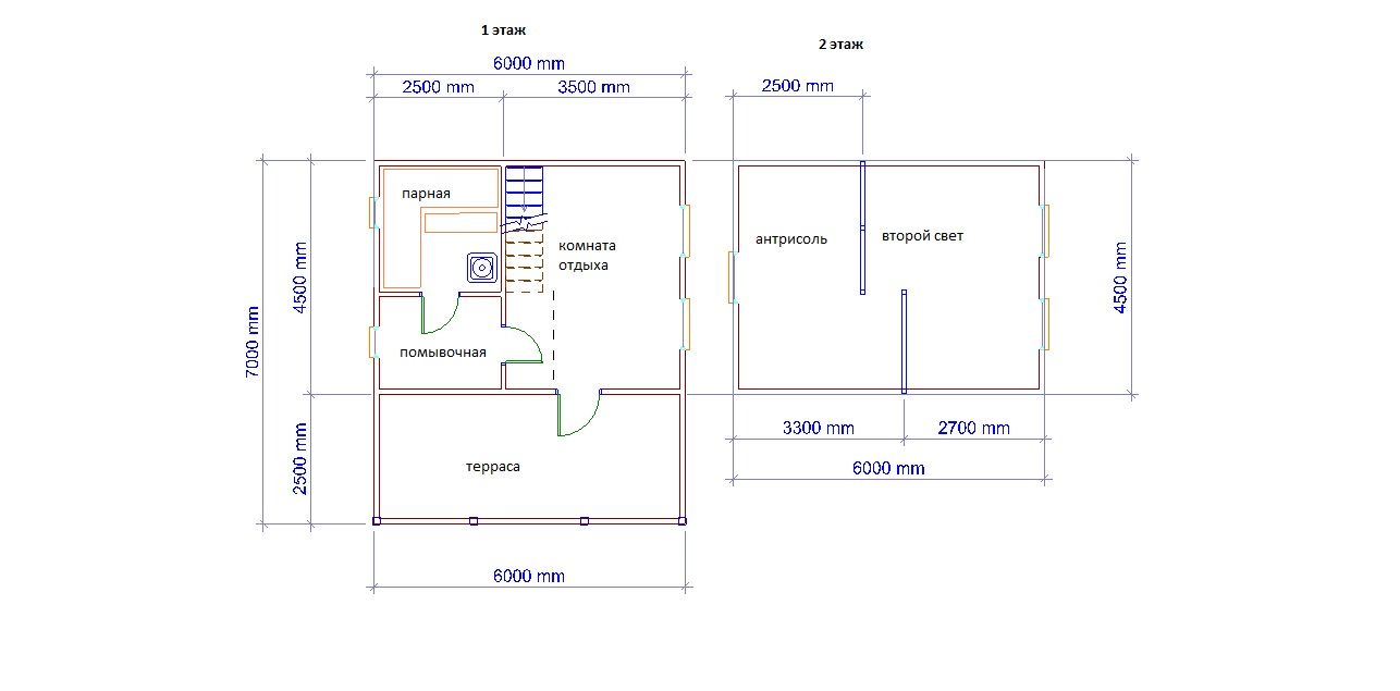
Первый этаж высотой 2,25м, s=27 м2(15 венцов).
Обвязка: брус 150х200 мм, строганный с внешней стороны, естественной влажности.
Лаги: брус 50х200 мм естественной влажности, устанавливаются на ребро с шагом 600 мм.
Полы: черновые: не обрезная доска 20-25мм естественной влажности + брусок 50х30мм.
Стены: брус (сосна) 150х150 мм строганный с двух сторон со снятием фаски, естественной влажности, укладывается на межвенцовый утеплитель (джут) в один слой и крепится деревянным шкантом. Толщина стен 150 мм. Стены не обшиваются.
Перегородки: брус (сосна) 150х150 мм строганный с двух сторон со снятием фаски, естественной влажности, укладывается на межвенцовый утеплитель (джут) в один слой и крепится деревянным шкантом. Толщина стен 150 мм. Стены не обшиваются.
Перекрытие первого этажа: брус 100х150 мм естественной влажности устанавливается на ребро.
Второй свет, высота переменная,
Стены (высотой 1,2м): брус (сосна) 150х150 мм строганный с двух сторон со снятием фаски, естественной влажности, укладывается на межвенцовый утеплитель (джут) в один слой и крепится деревянным шкантом. Толщина стен 150 мм. Стены не обшиваются.
Фронтоны: брус (сосна) 150х150 мм строганный с двух сторон со снятием фаски, естественной влажности, укладывается на межвенцовый утеплитель (джут) в один слой и крепится деревянным шкантом. Толщина стен 150 мм. Стены не обшиваются.
Стропильная конструкция: обрезная доска 50х150 мм, естественной влажности.
Обрешетка: не обрезная доска 25х150 мм, естественной влажности.
Гидроизоляция крыши: марки «АМ»
Контррейка по стропилам: брусок 50х30 мм, естественной влажности.
Крыша: двускатная, основной конёк по центральной оси здания.
Вынос крыши: по периметру 30 см, подшит доской строганной естественной влажности.
Покрытие крыши: металлочерепица, металлопрофиль, ондулин, цвет - на выбор.
Окна и двери: устройство проемов.
Терраса : каркасная, крытая, крыша односкатная, потолок – балки перекрытия из бруса 50х150мм, полы – лаги (брус 50х200мм).
ТЕХНИЧЕСКОЕ ОПИСАНИЕ:
Теплый контур С ОТДЕЛКОЙ ИЗ БРУСА 150Х150
Первый этаж высотой 2,25м, s=27 м2(15 венцов).
Обвязка: брус 150х200 мм, строганный с внешней стороны, естественной влажности.
Лаги: брус 50х200 мм естественной влажности, устанавливаются на ребро с шагом 600 мм.
Полы: двойные, утепленные (мин.вата 150мм), паровлагоизоляция марки «Б».
- черновые: не обрезная доска 20-25мм естественной влажности + брусок 50х50мм.
- чистовые - половая доска 27-30 мм (шпунтованная) (сосна кат.с)
Стены: брус (сосна) 150х150 мм строганный с двух сторон со снятием фаски, естественной влажности, укладывается на межвенцовый утеплитель (джут) в один слой и крепится деревянным шкантом. Толщина стен 150 мм. Стены не обшиваются.
Перегородки: брус (сосна) 150х150 мм строганный с двух сторон со снятием фаски, естественной влажности, укладывается на межвенцовый утеплитель (джут) в один слой и крепится деревянным шкантом. Толщина стен 150 мм. Стены не обшиваются.
Потолки: подшиваются вагонкой (сосна кат.с), паровлагоизоляция марки «Б».
Перекрытие первого этажа: брус 100х150 мм естественной влажности устанавливается на ребро, утепление (мин. Вата 100 мм), паровлагоизоляция марки «Б».
Второй свет: высота переменная,
В парном отделении: потолки подшиваются вагонкой (осина). Фольгированная паровлагоизоляция. Полы из сосны. Монтаж полок (простой осиновый).
В моечном отделении: потолки подшиваются вагонкой (сосна). Пол из лиственницы с уклоном не более 20 мм. Под мойкой бетонируется линза. Рядом с баней закладывается под слив металлическая бочка (200 л).
Полы: чистовые - половая доска 27-30 мм (шпунтованная) (сосна кат.с).
Стены (высотой 1,2 м): брус (сосна) 150х150 мм строганный с двух сторон со снятием фаски, естественной влажности, укладывается на межвенцовый утеплитель (джут) в один слой и крепится деревянным шкантом. Толщина стен 150 мм. Стены не обшиваются.
Перегородки, фронтоны: брус (сосна) 150х150 мм строганный с двух сторон со снятием фаски, естественной влажности, укладывается на межвенцовый утеплитель (джут) в один слой и крепится деревянным шкантом. Толщина стен 150 мм. Стены не обшиваются.
Стропильная конструкция: обрезная доска 50х150 мм, естественной влажности.
Контррейка по стропилам: брусок 50х30 мм, естественной влажности.
Обрешетка: не обрезная доска 25х150 мм, естественной влажности.
Гидроизоляция крыши: марки «АМ».
Утепление крыши: мин. Вата 150 мм.
Крыша: двускатная, основной конёк по центральной оси здания.
Вынос крыши: по периметру 30 см, подшит доской строганной естественной влажности.
Покрытие крыши: металлочерепица, металлопрофиль, ондулин, цвет - на выбор.
Окна: ПВХ с двух камерным стеклопакетом, поворотно-откидная фурнитура/глухие, высота переменная, без отделки внутренних откосов.
Двери: входная железная с фурнитурой (производство: россия) - 1шт, банные без фурнитуры – 2 шт, без отделки внутренних откосов.
Лестница: одномаршевая из строганной доски, 3 ступеньки при входе из строганной доски, монтаж плинтусов и галтелей входят в стоимость.
Терраса: каркасная, крытая, крыша односкатная, потолок – вагонка, полы – палубная доска 27 мм (сосна кат.с), не утепленные, перила из строганной доски, балясины..
ФУНДАМЕНТ ЛЕНТОЧНЫЙ
Фундамент ленточный под бани и дачные дома сечением 0,6х0,3м.
Разметка фундамента согласно проекту.
Разработка траншеи по периметру дома и под капитальные внутренние стены 40х30 см (ГхШ).
Засыпка и утрамбовка песчаной подушки высотой 5-10 см.
Устройство и укрепление опалубки из обрезной доски 25-50мм
Устройство продувочных отверстий (вентиляционные шахты)
Вязка арматурного каркаса из арматуры диаметром 10 мм.
Заливка готового бетона марки М 200 миксерами
Разгонка и выравнивание бетона по горизонтальному уровню
СВАИ ВИНТОВЫЕ
Свайный винтовой фундамент из свай СВС-2Л(т)-89/3100(6)-2-250(6)/250(6) по углам, остальные СВС(т)-89/3100(6)-1-300(6)
Разметка фундамента согласно проекту свайного поля.
Работа ямобура
Установка свай (толщина стенки сваи 6мм) с выпуском над землей до 50 см:
СВС-2Л(т)-89/3100(6)-2-250(6)/250(6),
СВС(т)-89/3100(6)-1-300(6)
Бетонирование ствола свай песко-цементной смесью
Установка и приварка оголовка сваи
ТЕХНИЧЕСКОЕ ОПИСАНИЕ:
Базовая коробка из бруса 150Х150
Первый этаж высотой 2,25м, s=27 м2(15 венцов).
Обвязка: брус 150х200 мм, строганный с внешней стороны, естественной влажности.
Лаги: брус 50х200 мм естественной влажности, устанавливаются на ребро с шагом 600 мм.
Полы: черновые: не обрезная доска 20-25мм естественной влажности + брусок 50х30мм.
Стены: брус (сосна) 150х150 мм строганный с двух сторон со снятием фаски, естественной влажности, укладывается на межвенцовый утеплитель (джут) в один слой и крепится деревянным шкантом. Толщина стен 150 мм. Стены не обшиваются.
Перегородки: брус (сосна) 150х150 мм строганный с двух сторон со снятием фаски, естественной влажности, укладывается на межвенцовый утеплитель (джут) в один слой и крепится деревянным шкантом. Толщина стен 150 мм. Стены не обшиваются.
Перекрытие первого этажа: брус 100х150 мм естественной влажности устанавливается на ребро.
Второй свет, высота переменная,
Стены (высотой 1,2м): брус (сосна) 150х150 мм строганный с двух сторон со снятием фаски, естественной влажности, укладывается на межвенцовый утеплитель (джут) в один слой и крепится деревянным шкантом. Толщина стен 150 мм. Стены не обшиваются.
Фронтоны: брус (сосна) 150х150 мм строганный с двух сторон со снятием фаски, естественной влажности, укладывается на межвенцовый утеплитель (джут) в один слой и крепится деревянным шкантом. Толщина стен 150 мм. Стены не обшиваются.
Стропильная конструкция: обрезная доска 50х150 мм, естественной влажности.
Обрешетка: не обрезная доска 25х150 мм, естественной влажности.
Гидроизоляция крыши: марки «АМ»
Контррейка по стропилам: брусок 50х30 мм, естественной влажности.
Крыша: двускатная, основной конёк по центральной оси здания.
Вынос крыши: по периметру 30 см, подшит доской строганной естественной влажности.
Покрытие крыши: металлочерепица, металлопрофиль, ондулин, цвет - на выбор.
Окна и двери: устройство проемов.
Терраса : каркасная, крытая, крыша односкатная, потолок – балки перекрытия из бруса 50х150мм, полы – лаги (брус 50х200мм).
ТЕХНИЧЕСКОЕ ОПИСАНИЕ:
Теплый контур С ОТДЕЛКОЙ ИЗ БРУСА 150Х150
Первый этаж высотой 2,25м, s=27 м2(15 венцов).
Обвязка: брус 150х200 мм, строганный с внешней стороны, естественной влажности.
Лаги: брус 50х200 мм естественной влажности, устанавливаются на ребро с шагом 600 мм.
Полы: двойные, утепленные (мин.вата 150мм), паровлагоизоляция марки «Б».
- черновые: не обрезная доска 20-25мм естественной влажности + брусок 50х50мм.
- чистовые - половая доска 27-30 мм (шпунтованная) (сосна кат.с)
Стены: брус (сосна) 150х150 мм строганный с двух сторон со снятием фаски, естественной влажности, укладывается на межвенцовый утеплитель (джут) в один слой и крепится деревянным шкантом. Толщина стен 150 мм. Стены не обшиваются.
Перегородки: брус (сосна) 150х150 мм строганный с двух сторон со снятием фаски, естественной влажности, укладывается на межвенцовый утеплитель (джут) в один слой и крепится деревянным шкантом. Толщина стен 150 мм. Стены не обшиваются.
Потолки: подшиваются вагонкой (сосна кат.с), паровлагоизоляция марки «Б».
Перекрытие первого этажа: брус 100х150 мм естественной влажности устанавливается на ребро, утепление (мин. Вата 100 мм), паровлагоизоляция марки «Б».
Второй свет: высота переменная,
В парном отделении: потолки подшиваются вагонкой (осина). Фольгированная паровлагоизоляция. Полы из сосны. Монтаж полок (простой осиновый).
В моечном отделении: потолки подшиваются вагонкой (сосна). Пол из лиственницы с уклоном не более 20 мм. Под мойкой бетонируется линза. Рядом с баней закладывается под слив металлическая бочка (200 л).
Полы: чистовые - половая доска 27-30 мм (шпунтованная) (сосна кат.с).
Стены (высотой 1,2 м): брус (сосна) 150х150 мм строганный с двух сторон со снятием фаски, естественной влажности, укладывается на межвенцовый утеплитель (джут) в один слой и крепится деревянным шкантом. Толщина стен 150 мм. Стены не обшиваются.
Перегородки, фронтоны: брус (сосна) 150х150 мм строганный с двух сторон со снятием фаски, естественной влажности, укладывается на межвенцовый утеплитель (джут) в один слой и крепится деревянным шкантом. Толщина стен 150 мм. Стены не обшиваются.
Стропильная конструкция: обрезная доска 50х150 мм, естественной влажности.
Контррейка по стропилам: брусок 50х30 мм, естественной влажности.
Обрешетка: не обрезная доска 25х150 мм, естественной влажности.
Гидроизоляция крыши: марки «АМ».
Утепление крыши: мин. Вата 150 мм.
Крыша: двускатная, основной конёк по центральной оси здания.
Вынос крыши: по периметру 30 см, подшит доской строганной естественной влажности.
Покрытие крыши: металлочерепица, металлопрофиль, ондулин, цвет - на выбор.
Окна: ПВХ с двух камерным стеклопакетом, поворотно-откидная фурнитура/глухие, высота переменная, без отделки внутренних откосов.
Двери: входная железная с фурнитурой (производство: россия) - 1шт, банные без фурнитуры – 2 шт, без отделки внутренних откосов.
Лестница: одномаршевая из строганной доски, 3 ступеньки при входе из строганной доски, монтаж плинтусов и галтелей входят в стоимость.
Терраса: каркасная, крытая, крыша односкатная, потолок – вагонка, полы – палубная доска 27 мм (сосна кат.с), не утепленные, перила из строганной доски, балясины..
ФУНДАМЕНТ ЛЕНТОЧНЫЙ
Фундамент ленточный под бани и дачные дома сечением 0,6х0,3м.
Разметка фундамента согласно проекту.
Разработка траншеи по периметру дома и под капитальные внутренние стены 40х30 см (ГхШ).
Засыпка и утрамбовка песчаной подушки высотой 5-10 см.
Устройство и укрепление опалубки из обрезной доски 25-50мм
Устройство продувочных отверстий (вентиляционные шахты)
Вязка арматурного каркаса из арматуры диаметром 10 мм.
Заливка готового бетона марки М 200 миксерами
Разгонка и выравнивание бетона по горизонтальному уровню
СВАИ ВИНТОВЫЕ
Свайный винтовой фундамент из свай СВС-2Л(т)-89/3100(6)-2-250(6)/250(6) по углам, остальные СВС(т)-89/3100(6)-1-300(6)
Разметка фундамента согласно проекту свайного поля.
Работа ямобура
Установка свай (толщина стенки сваи 6мм) с выпуском над землей до 50 см:
СВС-2Л(т)-89/3100(6)-2-250(6)/250(6),
СВС(т)-89/3100(6)-1-300(6)
Бетонирование ствола свай песко-цементной смесью
Установка и приварка оголовка сваи
