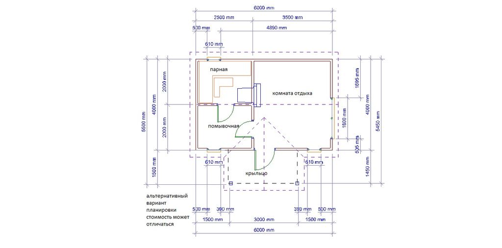
Б-06 ГАБАРИТНЫЕ РАЗМЕРЫ: (5,5Х6М) 1 ЭТАЖ, ОБЩАЯ ПЛОЩАДЬ: 27М²
|
базовая 100/150 |
580 000 |
|
стандарт 100/150 |
900 000 |
|
базовая 150/150 |
670 000 |
|
стандарт 150/150 |
990 000 |
|
Фундамент ленточный |
145 000 |
|
Сваи винтовые |
100 000 |
|
базовая 100/150 |
580 000 |
|
стандарт 100/150 |
900 000 |
|
базовая 150/150 |
670 000 |
|
стандарт 150/150 |
990 000 |
|
Фундамент ленточный |
145 000 |
|
Сваи винтовые |
100 000 |
-
Описание
ТЕХНИЧЕСКОЕ ОПИСАНИЕ:
БАЗОВАЯ ИЗ БРУСА 100Х150
Фундамент опорно-столбчатый ФБС 30х30х30 с подсыпкой ПГС и шагом не более 2-х метров друг от друга в один ряд входит в стоимость
Первый этаж высотой 2,25м.
Обвязка: брус 150х150 мм, строганный с внешней стороны, естественной влажности.
Лаги: брус 100х150 мм естественной влажности, устанавливаются на ребро с шагом 600 мм.
Полы: черновые: не обрезная доска 20-25мм естественной влажности + брусок 30х50мм.
Стены: Брус (сосна) 100х150 мм строганный с двух сторон со снятием фаски, естественной влажности, укладывается на межвенцовый утеплитель (джут) в один слой и крепится деревянным шкантом. Толщина стен 100 мм. Стены не обшиваются.
Перегородки: Брус (сосна) 100х150 мм строганный с двух сторон со снятием фаски, естественной влажности, укладывается на межвенцовый утеплитель (джут) в один слой и крепится деревянным шкантом. Толщина стен 100 мм. Стены не обшиваются.
Фронтоны: каркасные, с внешней стороны обшиваются имитацией бруса
Перекрытие первого этажа: брус 50х150 мм естественной влажности устанавливается на ребро
Стропильная конструкция: обрезная доска 50х150 мм, естественной влажности.
Обрешетка: не обрезная доска 25х150 мм, естественной влажности.
Крыша двускатная с коньком по центральной оси здания.
Вынос крыши: по периметру 30 см, подшит доской строганной естественной влажности.
Покрытие: Металлочерепица, металлопрофиль, ондулин, цвет - на выбор
Окна и Двери: устройство проемов.
ТЕХНИЧЕСКОЕ ОПИСАНИЕ:
СТАНДАРТ С ОТДЕЛКОЙ ИЗ БРУСА 100Х150
Фундамент опорно-столбчатый ФБС 30х30х30 с подсыпкой ПГС и шагом не более 2-х метров друг от друга в один ряд входит в стоимость
Первый этаж высотой 2,25м.
Обвязка: брус 150х150 мм, строганный с внешней стороны, естественной влажности.
Лаги: брус 100х150 мм естественной влажности, устанавливаются на ребро с шагом 600 мм.
Полы: двойные, утепленные (мин.вата 100мм), паровлагоизоляция марки «Б».
- черновые: не обрезная доска 20-25мм естественной влажности + брусок 30х50мм.
- чистовые - половая доска 27-30 мм (шпунтованная) из сосны категории «С»
Стены: Брус (сосна) 100х150 мм строганный с двух сторон со снятием фаски, естественной влажности, укладывается на межвенцовый утеплитель (джут) в один слой и крепится деревянным шкантом. Толщина стен 100 мм. Стены не обшиваются.
Перегородки: Брус (сосна) 100х150 мм строганный с двух сторон со снятием фаски, естественной влажности, укладывается на межвенцовый утеплитель (джут) в один слой и крепится деревянным шкантом. Толщина стен 100 мм. Стены не обшиваются.
Фронтоны: каркасные, с внешней стороны обшиваются имитацией бруса
Потолки: подшиваются вагонкой (сосна кат.С), паровлагоизоляция марки «Б».
В парном отделении: потолки подшиваются вагонкой (осина). Фольгированная паровлагоизоляция. Полы из сосны. Монтаж полок (простой осиновый).
В моечном отделении: потолки подшиваются вагонкой (сосна). Пол из лиственницы с уклоном не более 20 мм. Под мойкой бетонируется линза. Рядом с баней закладывается под слив металлическая бочка (200 л).
Перекрытие первого этажа: брус 50х150 мм естественной влажности устанавливается на ребро, утепление (мин. вата 100 мм).
Стропильная конструкция: обрезная доска 50х150 мм, естественной влажности.
Обрешетка: не обрезная доска 25х150 мм, естественной влажности.
Крыша двускатная с коньком по центральной оси здания.
Вынос крыши: по периметру 30 см, подшит доской строганной естественной влажности.
Покрытие: Металлочерепица, металлопрофиль, ондулин, цвет - на выбор
Окна: ПВХ с двух камерным стеклопакетом, поворотно-откидная фурнитура: 1-этаж: (0.6х0.6) -1шт, (0.6х1.2) -1шт, (1.0х1.2) -2шт, без отделки внутренних откосов.
Двери: дверь входная железная с фурнитурой (производство: Россия) - 1шт, межкомнатная филенчатая без фурнитуры – 2 шт, банная без фурнитуры – 1 шт, без отделки внутренних откосов.
Ступеньки при входе из строганной доски, монтаж плинтусов и галтелей входят в стоимость.
Установка печи (работа): установка защитного экрана из нержавеющего металлического листа, печи, сендвич-трубы, бака горячей воды на 60 литров, проходки через перекрытие и крышу, кладка кирпичной стенки.
ТЕХНИЧЕСКОЕ ОПИСАНИЕ:
БАЗОВАЯ ИЗ БРУСА 150х150
Фундамент опорно-столбчатый ФБС 30х30х30 с подсыпкой ПГС и шагом не более 2-х метров друг от друга в один ряд входит в стоимость
Первый этаж высотой 2,25м.
Обвязка: брус 200х200 мм, строганный с внешней стороны, естественной влажности.
Лаги: брус 50х200 мм естественной влажности, устанавливаются на ребро с шагом 600 мм.
Полы: черновые: не обрезная доска 20-25мм естественной влажности + брусок 30х50мм.
Стены: Брус (сосна) 150х150 мм строганный с двух сторон со снятием фаски, естественной влажности, укладывается на межвенцовый утеплитель (джут) в один слой и крепится деревянным шкантом. Толщина стен 150 мм. Стены не обшиваются.
Перегородки: Брус (сосна) 150х150 мм строганный с двух сторон со снятием фаски, естественной влажности, укладывается на межвенцовый утеплитель (джут) в один слой и крепится деревянным шкантом. Толщина стен 150 мм. Стены не обшиваются.
Фронтоны: каркасные, с внешней стороны обшиваются имитацией бруса
Перекрытие первого этажа: брус 50х150 мм естественной влажности устанавливается на ребро
Стропильная конструкция: обрезная доска 50х150 мм, естественной влажности.
Обрешетка: не обрезная доска 25х150 мм, естественной влажности.
Крыша двускатная с коньком по центральной оси здания.
Вынос крыши: по периметру 30 см, подшит доской строганной естественной влажности.
Покрытие: Металлочерепица, металлопрофиль, ондулин, цвет - на выбор
Окна и Двери: устройство проемов.
ТЕХНИЧЕСКОЕ ОПИСАНИЕ:
СТАНДАРТ С ОТДЕЛКОЙ ИЗ БРУСА 150Х150
Фундамент опорно-столбчатый ФБС 30х30х30 с подсыпкой ПГС и шагом не более 2-х метров друг от друга в один ряд входит в стоимость
Первый этаж высотой 2,25м.
Обвязка: брус 200х200 мм, строганный с внешней стороны, естественной влажности.
Лаги: брус 50х200 мм естественной влажности, устанавливаются на ребро с шагом 600 мм.
Полы: двойные, утепленные (мин.вата 150мм), паровлагоизоляция марки «Б».
- черновые: не обрезная доска 20-25мм естественной влажности + брусок 30х50мм.
- чистовые - половая доска 27-30 мм (шпунтованная) из сосны категории «С»
Стены: Брус (сосна) 150х150 мм строганный с двух сторон со снятием фаски, естественной влажности, укладывается на межвенцовый утеплитель (джут) в один слой и крепится деревянным шкантом. Толщина стен 150 мм. Стены не обшиваются.
Перегородки: Брус (сосна) 150х150 мм строганный с двух сторон со снятием фаски, естественной влажности, укладывается на межвенцовый утеплитель (джут) в один слой и крепится деревянным шкантом. Толщина стен 150 мм. Стены не обшиваются.
Фронтоны: каркасные, с внешней стороны обшиваются имитацией бруса
Потолки: подшиваются вагонкой (сосна кат.С), паровлагоизоляция марки «Б».
В парном отделении: потолки подшиваются вагонкой (осина). Фольгированная паровлагоизоляция. Полы из сосны. Монтаж полок (простой осиновый).
В моечном отделении: потолки подшиваются вагонкой (сосна). Пол из лиственницы с уклоном не более 20 мм. Под мойкой бетонируется линза. Рядом с баней закладывается под слив металлическая бочка (200 л).
Перекрытие первого этажа: брус 50х150 мм естественной влажности устанавливается на ребро, утепление (мин. вата 150 мм)
Стропильная конструкция: обрезная доска 50х150 мм, естественной влажности.
Обрешетка: не обрезная доска 25х150 мм, естественной влажности.
Крыша двускатная с коньком по центральной оси здания.
Вынос крыши: по периметру 30 см, подшит доской строганной естественной влажности.
Покрытие: Металлочерепица, металлопрофиль, ондулин, цвет - на выбор
Окна: ПВХ с двух камерным стеклопакетом, поворотно-откидная фурнитура: 1-этаж: (0.6х0.6) -1шт, (0.6х1.2) -1шт, (1.0х1.2) -2шт, без отделки внутренних откосов
Двери: дверь входная железная с фурнитурой (производство: Россия) - 1шт, межкомнатная филенчатая без фурнитуры – 2 шт, банная без фурнитуры – 1 шт, без отделки внутренних откосов.
Ступеньки при входе из строганной доски, монтаж плинтусов и галтелей входят в стоимость
Установка печи (работа): установка защитного экрана из нержавеющего металлического листа, печи, сендвич-трубы, бака горячей воды на 60 литров, проходки через перекрытие и крышу, кладка кирпичной стенки.
ФУНДАМЕНТ ЛЕНТОЧНЫЙ
Фундамент ленточный под бани и дачные дома сечением 0,6х0,3м.
Разметка фундамента согласно проекту.
Разработка траншеи по периметру дома и под капитальные внутренние стены 40х30 см (ГхШ).
Засыпка и утрамбовка песчаной подушки высотой 5-10 см.
Устройство и укрепление опалубки из обрезной доски 25-40 мм
Устройство продувочных отверстий (вентиляционные шахты)
Вязка арматурного каркаса из арматуры диаметром 10 мм.
Заливка готового бетона марки М 200 миксерами
Разгонка и выравнивание бетона по горизонтальному уровню
СВАИ ВИНТОВЫЕ
Свайный винтовой фундамент из свай СВС-2Л(т)-89/3100(6)-2-250(6)/250(6) по углам, остальные СВС(т)-89/3100(6)-1-300(6)
Разметка фундамента согласно проекту свайного поля.
Работа ямобура
Установка свай (толщина стенки сваи 6мм) с выпуском над землей до 50 см:
СВС-2Л(т)-89/3100(6)-2-250(6)/250(6),
СВС(т)-89/3100(6)-1-300(6)
Бетонирование ствола свай песко-цементной смесью
Установка и приварка оголовка сваи
