ЖИЛЫЕ И ЗАГОРОДНЫЕ ДОМА КРУГЛОГОДИЧНОЙ ЭКСПЛУАТАЦИИ
Ищите в интернете построить дом из бруса в Новосибирске под ключ или каркасный дом под ключ Новосибирск ? Профессиональное строительство домов и коттеджей в Новосибирске из бруса под ключ или сруб, коробку, а так же из каркаса, сибита или кирпича.
Построить дом Новосибирск из профилированного, клееного, сухого и строганного бруса, так же по каркасной технологии и газобетона.
Любой понравившейся эскизный проект мы можем построить для вас из любого материала.
Мы предлагаем профессиональные услуги по строительству дома под ключ в Новосибирске по самым доступным ценам и с гарантией качества. В зависимости от предпочтений, заказчик может выбрать один из наших готовых проектов или заказать разработку индивидуального проекта, который будет соответствовать всем его пожеланиям и требованиям.
Особенности домов из бруса
Строганный брус – один из самых популярных материалов для быстрого строительства, который успел заявить о себе, как о практичном и надежном материале. Вот его главные особенности:
- Доступная цена. Строганный брус очень доступен, даже по сравнению с профилированным. Обработка древесины занимает меньше времени, для него задействуется меньше производственных мощностей, что позволяет существенно снизить конечную стоимость. Цена дома из бруса под ключ будет зависеть от сложности и размера проекта.
- Быстрое строительство. Постройка дома из бруса в среднем занимает от 1 до 6 месяцев. Точные сроки строительства будут зависеть от сложности проекта, этажности дома.
- Безопасность. Древесина, которая используется для постройки, пропитывается современными септиками, которые делают ее пожаробезопасной. Мы используем исключительно высококачественные септики, которые не нанесут вреда здоровью человека.
- Хороший микроклимат. Строганный брус хорошо удерживает тепло, поэтому использовать такие дома для жизни можно на протяжении всего года. Природные свойства древесины обеспечивают оптимальный для жизни уровень влажности и температурный режим. Отдельным приятным моментом такого дома является приятный запах древесины.
- Натуральность. Деревянные дома – это экологически безопасные постройки, совершенно безопасные для здоровья.
- Легкость. Строительство деревянных домов из бруса отличаются небольшим весом, что позволяет заметно снизить расходы на закладывание фундамента.
Разнообразие домов из бруса
На нашем сайте вы сможете ознакомиться с разнообразными проектами домов. Данный тип строительства практически не ограничивает клиента в выборе габаритов здания. Мы возводим как небольшие дачные домики, так и просторные двухэтажные коттеджи.
Наши преимущества
Строительство домов из бруса – наша основная специализация, в которой мы достигли высокого уровня профессионализма. Если вы хотите построить дом из бруса под ключ недорого, заказывайте услуги строительства на нашем сайте!
Для своих клиентов мы предлагаем максимально комфортные и выгодные условия сотрудничества построить дом:
- Фиксированные цены. Стоимость выполнения работ оговаривается на начальном этапе строительство деревянных домов и фиксируется в договоре. Эта сумма является точной и окончательной. Работая с нами, вы можете быть уверены, что не столкнетесь с дополнительными непредвиденными затратами.
- Универсальные готовые дома. На нашем сайте представлен большой выбор проектов домов из бруса разного размера и типа, которые удовлетворят самые разные запросы клиентов. В то же время мы предоставляем возможность разработки индивидуального проекта, оказывая эту услугу по минимальной цене.
- Собственное производство. Мы имеем собственное производство бруса, осуществляем жесткий контроль его качества на всех этапах изготовления, благодаря чему может быть на 100% уверены в надежности и безопасности домов.
- Качественная древесина. Мы используем прочную и долговечную древесину северных пород.
На нашем сайте вы можете уже сейчас заказать строительство домов под ключ! Мы предлагаем разнообразные проекты и доступные цены!
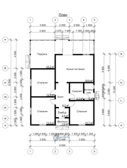
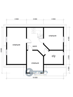
Строительство каркасных домов под ключ и строительство дома под ключ или сруба начинают с выбора проекта. Проект загородного дома или можно заказать индивидуально в нашей компании, так же расчет каркасного дома, мы предлагаем готовые проекты домов и коттеджей. Поэтому, специально для наших заказчиков, дипломированный проектировщик разработает проект малоэтажного дома из различных материалов дом баня под ключ или сруб из бруса. Знаем, что удобно рассматривать дом и сразу прикидывать свои финансовые возможности — для этого мы подготовили готовые проекты домов на нашем сайте и цена на строительство сруба или под ключ актуальна и не измениться во время заключения договора и строительства дома каркасный дом цена узнать по телефону.
При заказе строительства у нас, вы получаете визуализацию вашего проекта на строительство дома в подарок совершенно бесплатно !
