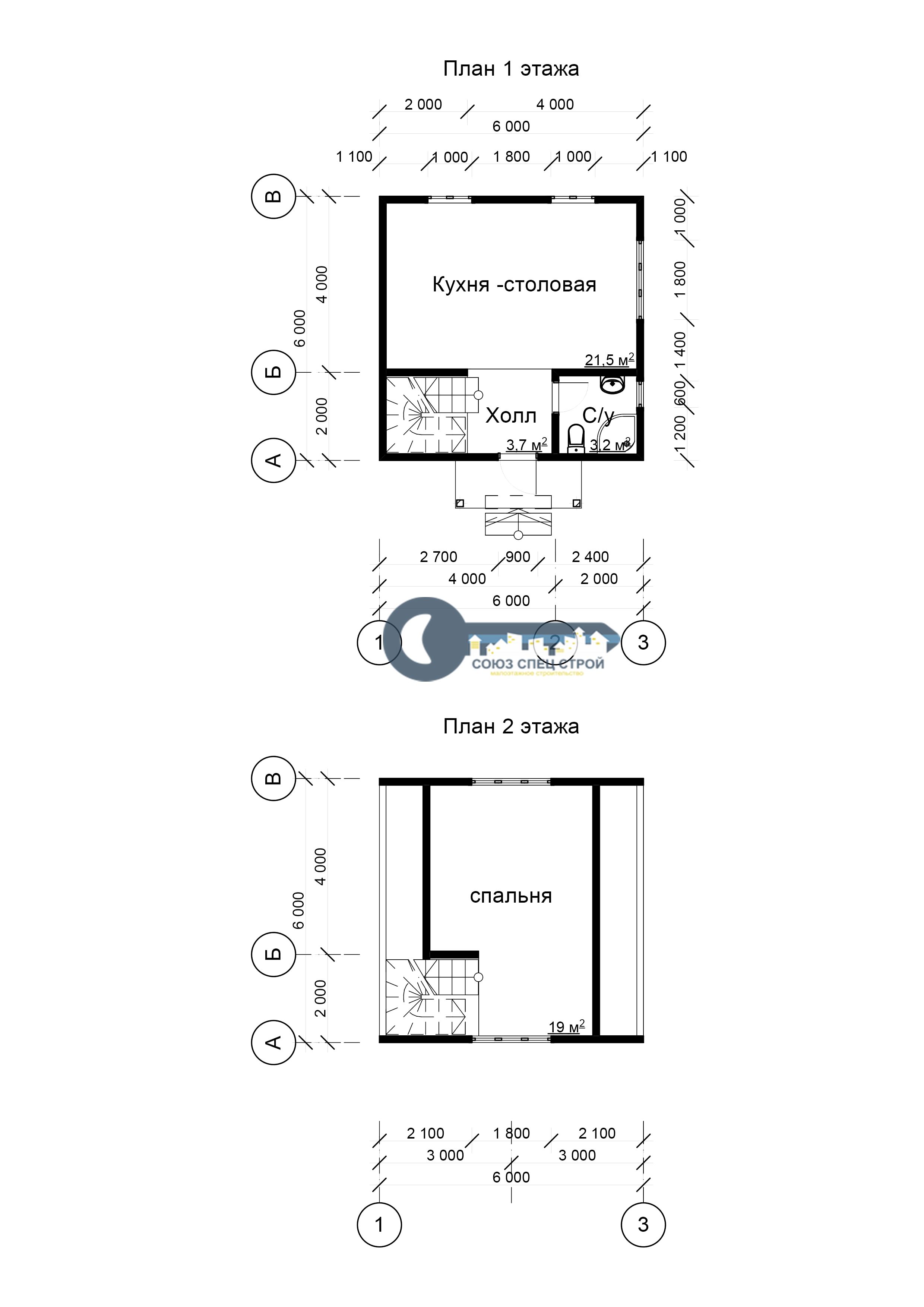
Д-13 ДАЧНЫЙ ДОМ ИЗ БРУСА:ГАБАРИТНЫЕ РАЗМЕРЫ: (7Х6М), ОБЩАЯ ПЛОЩАДЬ: 66М²
| базовая 100/150 | 880 000 |
| стандарт 100/150 | 1 440 000 |
| базовая 150/150 | 990 000 |
| стандарт 150/150 | 1 580 000 |
| фундамент ленточный | 170 000 |
| сваи винтовые | 120 000 |
| базовая 100/150 | 880 000 |
| стандарт 100/150 | 1 440 000 |
| базовая 150/150 | 990 000 |
| стандарт 150/150 | 1 580 000 |
| фундамент ленточный | 170 000 |
| сваи винтовые | 120 000 |
-
Описание
ТЕХНИЧЕСКОЕ ОПИСАНИЕ:
БАЗОВАЯ ИЗ БРУСА 100Х150
Фундамент опорно-столбчатый ФБС 30х30х30 с подсыпкой ПГС не более 2-х метров друг от друга. (в количестве 19 шт в один ряд входит в стоимость, второй ряд за дополнительную плату)
Первый этаж высотой 2,4м,
Обвязка: брус 150х150 мм, строганный с внешней стороны, естественной влажности.
Лаги: брус 100х150 мм естественной влажности, устанавливаются на ребро с шагом 600 мм.
Полы: черновые: необрезная доска 20-25мм естественной влажности + брусок 50х50мм.
Стены: брус (сосна) 100х150 мм строганный с двух сторон со снятием фаски, естественной влажности, укладывается на межвенцовый утеплитель (джут) в один слой и крепится деревянным шкантом. Толщина стен 100 мм. Стены не обшиваются.
Перегородки: брус, строганный с двух сторон со снятием фаски 100х150 мм (толщина стены 100+-5 мм), естественной влажности.
Перекрытие первого этажа: брус 100 х150 мм естественной влажности устанавливается на ребро
Второй этаж 4.5х6м мансардный высотой 2,25 м,
Стены: фронтоны обшиваются снаружи имитацией бруса либо вагонкой «штиль»
Стропильная конструкция: обрезная доска 50х150 мм, естественной влажности.
Обрешетка: необрезная доска 25х150 мм, естественной влажности.
Парогидроизоляция крыши: марки «АМ»
Крыша: ломанная с коньком по центральной оси здания.
Вынос крыши: по периметру 30 см, подшит доской строганной естественной влажности.
Покрытие: металлочерепица, металлопрофиль, ондулин цвет: на выбор
Окна и двери: устройство проемов.
Веранда 2,25 м2: высота -2.2м, открытая, внешний вид согласно визуальной картинке
ТЕХНИЧЕСКОЕ ОПИСАНИЕ:
СТАНДАРТ С ОТДЕЛКОЙ ИЗ БРУСА 100Х150
Фундамент опорно-столбчатый ФБС 30х30х30 с подсыпкой ПГС не более 2-х метров друг от друга. (в количестве 19 шт в один ряд входит в стоимость, второй ряд за дополнительную плату)
Первый этаж высотой 2,4м,
Обвязка: брус 150х150 мм, строганный с внешней стороны, естественной влажности.
Лаги: брус 100х150 мм естественной влажности, устанавливаются на ребро с шагом 600 мм.
Полы: двойные, утепленные (мин.вата 100мм), паровлагоизоляция марки «Б».
- черновые: необрезная доска 20-25мм естественной влажности + брусок 50х50мм.
- чистовые- половая доска 27-30 мм (шпунтованная), сосна категории «С»
Стены: брус (сосна) 100х150 мм строганный с двух сторон со снятием фаски, естественной влажности, укладывается на межвенцовый утеплитель (джут) в один слой и крепится деревянным шкантом. Толщина стен 100 мм. Стены не обшиваются.
Перегородки: брус, строганный с двух сторон со снятием фаски 100х150 мм (толщина стены 100+-5 мм), естественной влажности.
Потолки: подшиваются вагонкой (сосна кат.с), паровлагоизоляция марки «Б».
Перекрытие первого этажа: брус 100 х150 мм естественной влажности устанавливается на ребро, утепление(мин. Вата 50 мм), паровлагоизоляция марки «Б»
Второй этаж 4.5х6м мансардный высотой 2,25 м,
Стены: каркасные стены и потолок обшиваются вагонкой (сосна), утепление (мин.вата 100 мм), паровлагоизоляция марки «Б», фронтоны снаружи обшиваются имитацией бруса либо вагонкой «штиль»
Перегородки: каркасные, обшиваются вагонкой (сосна кат.с), утепление (мин.вата 50 мм
Стропильная конструкция: обрезная доска 50х150 мм, естественной влажности.
Обрешетка: необрезная доска 25х150 мм, естественной влажности.
Гидроизоляция крыши: марки «АМ»
Крыша: ломанная с коньком по центральной оси здания.
Вынос крыши: по периметру 30 см, подшит доской строганной естественной влажности.
Покрытие: металлочерепица, металлопрофиль, ондулин цвет: на выбор
Окна: ПВХ с двух камерным стеклопакетом, поворотно-откидная фурнитура: 1-этаж: (1.8х1.2) -1шт,(1х1.2)-2шт,,(0.6х0.6)-1шт, без отделки внутренних откосов. 2-этаж: (1.8х1.2) -2 шт, с отделкой внутренних откосов
Двери: межкомнатная филенчатая без фурнитуры – 1 шт, дверь входная железная с фурнитурой (производство: россия) - 1шт, без отделки внутренних откосов.
Лестница: одномаршевая из строганной доски, 3 ступеньки при входе из строганной доски, монтаж плинтусов и галтелей входят в стоимость
Веранда 2,25 м2: высота -2.2м, открытая, внешний вид согласно визуальной картинке
ТЕХНИЧЕСКОЕ ОПИСАНИЕ:
БАЗОВАЯ ИЗ БРУСА 150х150
Фундамент опорно-столбчатый ФБС 30х30х30 с подсыпкой ПГС не более 2-х метров друг от друга. (в количестве 19 шт в один ряд входит в стоимость, второй ряд за дополнительную плату)
Первый этаж высотой 2,4м,
Обвязка: брус 150х200 мм, строганный с внешней стороны, естественной влажности.
Лаги: брус 100х150 мм естественной влажности, устанавливаются на ребро с шагом 600 мм.
Полы: черновые: необрезная доска 20-25мм естественной влажности + брусок 50х50мм.
Стены: брус (сосна) 150х150 мм строганный с двух сторон со снятием фаски, естественной влажности, укладывается на межвенцовый утеплитель (джут) в один слой и крепится деревянным шкантом. Толщина стен 150 мм. Стены не обшиваются.
Перегородки: брус, строганный с двух сторон со снятием фаски 150х150 мм (толщина стены 150+-5 мм), естественной влажности.
Перекрытие первого этажа: брус 100 х150 мм естественной влажности устанавливается на ребро
Второй этаж 4.5х6м мансардный высотой 2,25 м,
Стены: фронтоны обшиваются снаружи имитацией бруса либо вагонкой «штиль»
Стропильная конструкция: обрезная доска 50х150 мм, естественной влажности.
Обрешетка: необрезная доска 25х150 мм, естественной влажности.
Парогидроизоляция крыши: марки «АМ»
Крыша: ломанная с коньком по центральной оси здания.
Вынос крыши: по периметру 30 см, подшит доской строганной естественной влажности.
Покрытие: металлочерепица, металлопрофиль, ондулин цвет: на выбор
Окна и двери: устройство проемов.
Веранда 2,25 м2: высота -2.2м, открытая, внешний вид согласно визуальной картинке
ТЕХНИЧЕСКОЕ ОПИСАНИЕ:
СТАНДАРТ С ОТДЕЛКОЙ ИЗ БРУСА 150Х150
Фундамент опорно-столбчатый ФБС 30х30х30 с подсыпкой ПГС не более 2-х метров друг от друга. (в количестве 19 шт в один ряд входит в стоимость, второй ряд за дополнительную плату)
Первый этаж высотой 2,4м,
Обвязка: брус 150х200 мм, строганный с внешней стороны, естественной влажности.
Лаги: брус 100х150 мм естественной влажности, устанавливаются на ребро с шагом 600 мм.
Полы: двойные, утепленные (мин.вата 150мм), паровлагоизоляция марки «Б».
- черновые: необрезная доска 20-25мм естественной влажности + брусок 50х50мм.
- чистовые- половая доска 27-30 мм (шпунтованная), сосна категории «С»
Стены: брус (сосна) 150х150 мм строганный с двух сторон со снятием фаски, естественной влажности, укладывается на межвенцовый утеплитель (джут) в один слой и крепится деревянным шкантом. Толщина стен 150 мм. Стены не обшиваются.
Перегородки: брус, строганный с двух сторон со снятием фаски 150х150 мм (толщина стены 150+-5 мм), естественной влажности.
Потолки: подшиваются вагонкой (сосна кат.с), паровлагоизоляция марки «Б».
Перекрытие первого этажа: брус 100 х150 мм естественной влажности устанавливается на ребро, утепление(мин. Вата 100 мм), паровлагоизоляция марки «Б»
Второй этаж 4.5х6м мансардный высотой 2,25 м,
Стены: каркасные стены и потолок обшиваются вагонкой (сосна), утепление (мин.вата 150 мм), паровлагоизоляция марки «Б», фронтоны снаружи обшиваются имитацией бруса либо вагонкой «штиль»
Перегородки: каркасные, обшиваются вагонкой (сосна кат.с), утепление (мин.вата 50 мм)
Стропильная конструкция: обрезная доска 50х150 мм, естественной влажности.
Обрешетка: необрезная доска 25х150 мм, естественной влажности.
Гидроизоляция крыши: марки «АМ»
Крыша: ломаная с коньком по центральной оси здания.
Вынос крыши: по периметру 30 см, подшит доской строганной естественной влажности.
Покрытие: металлочерепица, металлопрофиль, ондулин цвет: на выбор
Окна: ПВХ с двух камерным стеклопакетом, поворотно-откидная фурнитура: 1-этаж: (1.8х1.2) -1шт,(1х1.2)-2шт,,(0.6х0.6)-1шт, без отделки внутренних откосов. 2-этаж: (1.8х1.2) -2 шт, с отделкой внутренних откосов
Двери: межкомнатная филенчатая без фурнитуры – 1 шт, дверь входная железная с фурнитурой (производство: россия) - 1шт, без отделки внутренних откосов.
Лестница: одномаршевая из строганной доски, 3 ступеньки при входе из строганной доски, монтаж плинтусов и галтелей входят в стоимость
Веранда 2,25 м2: высота -2.2м, открытая, внешний вид согласно визуальной картинке
ФУНДАМЕНТ ЛЕНТОЧНЫЙ
Фундамент ленточный под бани и дачные дома сечением 0,6х0,3м.
Разметка фундамента согласно проекту.
Разработка траншеи по периметру дома и под капитальные внутренние стены 40х30 см (ГхШ).
Засыпка и утрамбовка песчаной подушки высотой 5-10 см.
Устройство и укрепление опалубки из обрезной доски 25-40 мм
Устройство продувочных отверстий (вентиляционные шахты)
Вязка арматурного каркаса из арматуры диаметром 10 мм.
Заливка готового бетона марки М 200 миксерами
Разгонка и выравнивание бетона по горизонтальному уровню
СВАИ ВИНТОВЫЕ
Свайный винтовой фундамент из свай СВС-2Л(т)-89/3100(6)-2-250(6)/250(6) по углам, остальные СВС(т)-89/3100(6)-1-300(6)
Разметка фундамента согласно проекту свайного поля.
Работа ямобура
Установка свай (толщина стенки сваи 6мм) с выпуском над землей до 50 см:
СВС-2Л(т)-89/3100(6)-2-250(6)/250(6),
СВС(т)-89/3100(6)-1-300(6)
Бетонирование ствола свай песко-цементной смесью
Установка и приварка оголовка сваи
-
Характеристики
Полтора этажаестьПлощадьот 20 до 100 кв/м
ТЕХНИЧЕСКОЕ ОПИСАНИЕ:
БАЗОВАЯ ИЗ БРУСА 100Х150
Фундамент опорно-столбчатый ФБС 30х30х30 с подсыпкой ПГС не более 2-х метров друг от друга. (в количестве 19 шт в один ряд входит в стоимость, второй ряд за дополнительную плату)
Первый этаж высотой 2,4м,
Обвязка: брус 150х150 мм, строганный с внешней стороны, естественной влажности.
Лаги: брус 100х150 мм естественной влажности, устанавливаются на ребро с шагом 600 мм.
Полы: черновые: необрезная доска 20-25мм естественной влажности + брусок 50х50мм.
Стены: брус (сосна) 100х150 мм строганный с двух сторон со снятием фаски, естественной влажности, укладывается на межвенцовый утеплитель (джут) в один слой и крепится деревянным шкантом. Толщина стен 100 мм. Стены не обшиваются.
Перегородки: брус, строганный с двух сторон со снятием фаски 100х150 мм (толщина стены 100+-5 мм), естественной влажности.
Перекрытие первого этажа: брус 100 х150 мм естественной влажности устанавливается на ребро
Второй этаж 4.5х6м мансардный высотой 2,25 м,
Стены: фронтоны обшиваются снаружи имитацией бруса либо вагонкой «штиль»
Стропильная конструкция: обрезная доска 50х150 мм, естественной влажности.
Обрешетка: необрезная доска 25х150 мм, естественной влажности.
Парогидроизоляция крыши: марки «АМ»
Крыша: ломанная с коньком по центральной оси здания.
Вынос крыши: по периметру 30 см, подшит доской строганной естественной влажности.
Покрытие: металлочерепица, металлопрофиль, ондулин цвет: на выбор
Окна и двери: устройство проемов.
Веранда 2,25 м2: высота -2.2м, открытая, внешний вид согласно визуальной картинке
ТЕХНИЧЕСКОЕ ОПИСАНИЕ:
СТАНДАРТ С ОТДЕЛКОЙ ИЗ БРУСА 100Х150
Фундамент опорно-столбчатый ФБС 30х30х30 с подсыпкой ПГС не более 2-х метров друг от друга. (в количестве 19 шт в один ряд входит в стоимость, второй ряд за дополнительную плату)
Первый этаж высотой 2,4м,
Обвязка: брус 150х150 мм, строганный с внешней стороны, естественной влажности.
Лаги: брус 100х150 мм естественной влажности, устанавливаются на ребро с шагом 600 мм.
Полы: двойные, утепленные (мин.вата 100мм), паровлагоизоляция марки «Б».
- черновые: необрезная доска 20-25мм естественной влажности + брусок 50х50мм.
- чистовые- половая доска 27-30 мм (шпунтованная), сосна категории «С»
Стены: брус (сосна) 100х150 мм строганный с двух сторон со снятием фаски, естественной влажности, укладывается на межвенцовый утеплитель (джут) в один слой и крепится деревянным шкантом. Толщина стен 100 мм. Стены не обшиваются.
Перегородки: брус, строганный с двух сторон со снятием фаски 100х150 мм (толщина стены 100+-5 мм), естественной влажности.
Потолки: подшиваются вагонкой (сосна кат.с), паровлагоизоляция марки «Б».
Перекрытие первого этажа: брус 100 х150 мм естественной влажности устанавливается на ребро, утепление(мин. Вата 50 мм), паровлагоизоляция марки «Б»
Второй этаж 4.5х6м мансардный высотой 2,25 м,
Стены: каркасные стены и потолок обшиваются вагонкой (сосна), утепление (мин.вата 100 мм), паровлагоизоляция марки «Б», фронтоны снаружи обшиваются имитацией бруса либо вагонкой «штиль»
Перегородки: каркасные, обшиваются вагонкой (сосна кат.с), утепление (мин.вата 50 мм
Стропильная конструкция: обрезная доска 50х150 мм, естественной влажности.
Обрешетка: необрезная доска 25х150 мм, естественной влажности.
Гидроизоляция крыши: марки «АМ»
Крыша: ломанная с коньком по центральной оси здания.
Вынос крыши: по периметру 30 см, подшит доской строганной естественной влажности.
Покрытие: металлочерепица, металлопрофиль, ондулин цвет: на выбор
Окна: ПВХ с двух камерным стеклопакетом, поворотно-откидная фурнитура: 1-этаж: (1.8х1.2) -1шт,(1х1.2)-2шт,,(0.6х0.6)-1шт, без отделки внутренних откосов. 2-этаж: (1.8х1.2) -2 шт, с отделкой внутренних откосов
Двери: межкомнатная филенчатая без фурнитуры – 1 шт, дверь входная железная с фурнитурой (производство: россия) - 1шт, без отделки внутренних откосов.
Лестница: одномаршевая из строганной доски, 3 ступеньки при входе из строганной доски, монтаж плинтусов и галтелей входят в стоимость
Веранда 2,25 м2: высота -2.2м, открытая, внешний вид согласно визуальной картинке
ТЕХНИЧЕСКОЕ ОПИСАНИЕ:
БАЗОВАЯ ИЗ БРУСА 150х150
Фундамент опорно-столбчатый ФБС 30х30х30 с подсыпкой ПГС не более 2-х метров друг от друга. (в количестве 19 шт в один ряд входит в стоимость, второй ряд за дополнительную плату)
Первый этаж высотой 2,4м,
Обвязка: брус 150х200 мм, строганный с внешней стороны, естественной влажности.
Лаги: брус 100х150 мм естественной влажности, устанавливаются на ребро с шагом 600 мм.
Полы: черновые: необрезная доска 20-25мм естественной влажности + брусок 50х50мм.
Стены: брус (сосна) 150х150 мм строганный с двух сторон со снятием фаски, естественной влажности, укладывается на межвенцовый утеплитель (джут) в один слой и крепится деревянным шкантом. Толщина стен 150 мм. Стены не обшиваются.
Перегородки: брус, строганный с двух сторон со снятием фаски 150х150 мм (толщина стены 150+-5 мм), естественной влажности.
Перекрытие первого этажа: брус 100 х150 мм естественной влажности устанавливается на ребро
Второй этаж 4.5х6м мансардный высотой 2,25 м,
Стены: фронтоны обшиваются снаружи имитацией бруса либо вагонкой «штиль»
Стропильная конструкция: обрезная доска 50х150 мм, естественной влажности.
Обрешетка: необрезная доска 25х150 мм, естественной влажности.
Парогидроизоляция крыши: марки «АМ»
Крыша: ломанная с коньком по центральной оси здания.
Вынос крыши: по периметру 30 см, подшит доской строганной естественной влажности.
Покрытие: металлочерепица, металлопрофиль, ондулин цвет: на выбор
Окна и двери: устройство проемов.
Веранда 2,25 м2: высота -2.2м, открытая, внешний вид согласно визуальной картинке
ТЕХНИЧЕСКОЕ ОПИСАНИЕ:
СТАНДАРТ С ОТДЕЛКОЙ ИЗ БРУСА 150Х150
Фундамент опорно-столбчатый ФБС 30х30х30 с подсыпкой ПГС не более 2-х метров друг от друга. (в количестве 19 шт в один ряд входит в стоимость, второй ряд за дополнительную плату)
Первый этаж высотой 2,4м,
Обвязка: брус 150х200 мм, строганный с внешней стороны, естественной влажности.
Лаги: брус 100х150 мм естественной влажности, устанавливаются на ребро с шагом 600 мм.
Полы: двойные, утепленные (мин.вата 150мм), паровлагоизоляция марки «Б».
- черновые: необрезная доска 20-25мм естественной влажности + брусок 50х50мм.
- чистовые- половая доска 27-30 мм (шпунтованная), сосна категории «С»
Стены: брус (сосна) 150х150 мм строганный с двух сторон со снятием фаски, естественной влажности, укладывается на межвенцовый утеплитель (джут) в один слой и крепится деревянным шкантом. Толщина стен 150 мм. Стены не обшиваются.
Перегородки: брус, строганный с двух сторон со снятием фаски 150х150 мм (толщина стены 150+-5 мм), естественной влажности.
Потолки: подшиваются вагонкой (сосна кат.с), паровлагоизоляция марки «Б».
Перекрытие первого этажа: брус 100 х150 мм естественной влажности устанавливается на ребро, утепление(мин. Вата 100 мм), паровлагоизоляция марки «Б»
Второй этаж 4.5х6м мансардный высотой 2,25 м,
Стены: каркасные стены и потолок обшиваются вагонкой (сосна), утепление (мин.вата 150 мм), паровлагоизоляция марки «Б», фронтоны снаружи обшиваются имитацией бруса либо вагонкой «штиль»
Перегородки: каркасные, обшиваются вагонкой (сосна кат.с), утепление (мин.вата 50 мм)
Стропильная конструкция: обрезная доска 50х150 мм, естественной влажности.
Обрешетка: необрезная доска 25х150 мм, естественной влажности.
Гидроизоляция крыши: марки «АМ»
Крыша: ломаная с коньком по центральной оси здания.
Вынос крыши: по периметру 30 см, подшит доской строганной естественной влажности.
Покрытие: металлочерепица, металлопрофиль, ондулин цвет: на выбор
Окна: ПВХ с двух камерным стеклопакетом, поворотно-откидная фурнитура: 1-этаж: (1.8х1.2) -1шт,(1х1.2)-2шт,,(0.6х0.6)-1шт, без отделки внутренних откосов. 2-этаж: (1.8х1.2) -2 шт, с отделкой внутренних откосов
Двери: межкомнатная филенчатая без фурнитуры – 1 шт, дверь входная железная с фурнитурой (производство: россия) - 1шт, без отделки внутренних откосов.
Лестница: одномаршевая из строганной доски, 3 ступеньки при входе из строганной доски, монтаж плинтусов и галтелей входят в стоимость
Веранда 2,25 м2: высота -2.2м, открытая, внешний вид согласно визуальной картинке
ФУНДАМЕНТ ЛЕНТОЧНЫЙ
Фундамент ленточный под бани и дачные дома сечением 0,6х0,3м.
Разметка фундамента согласно проекту.
Разработка траншеи по периметру дома и под капитальные внутренние стены 40х30 см (ГхШ).
Засыпка и утрамбовка песчаной подушки высотой 5-10 см.
Устройство и укрепление опалубки из обрезной доски 25-40 мм
Устройство продувочных отверстий (вентиляционные шахты)
Вязка арматурного каркаса из арматуры диаметром 10 мм.
Заливка готового бетона марки М 200 миксерами
Разгонка и выравнивание бетона по горизонтальному уровню
СВАИ ВИНТОВЫЕ
Свайный винтовой фундамент из свай СВС-2Л(т)-89/3100(6)-2-250(6)/250(6) по углам, остальные СВС(т)-89/3100(6)-1-300(6)
Разметка фундамента согласно проекту свайного поля.
Работа ямобура
Установка свай (толщина стенки сваи 6мм) с выпуском над землей до 50 см:
СВС-2Л(т)-89/3100(6)-2-250(6)/250(6),
СВС(т)-89/3100(6)-1-300(6)
Бетонирование ствола свай песко-цементной смесью
Установка и приварка оголовка сваи
Удалить товар
Вы точно хотите удалить выбранный товар? Отменить данное действие будет невозможно.
